Kamin mit Wassermantel - MAJA/PW/12/W - (8kW) Ø 180
Regulärer Preis:
product unavailable
Auf den Merkzettel
Beschreibung
KRATKI - Wasserführender Kamineinsatz - MAJA/PW/12/W - Gusseisen Holzkamin (8kW) mit Sichercheitswärmetauscher - Rauchrohranschluss (mm): Ø 180
Eine Feuerstelle mit einer an das intensive Rauchen angepassten Wassereinheit, bei der die verwendeten Technologien und Materialien einen effizienten, wirtschaftlichen und ökologischen Beitrag mit hoher Effizienz leisten
VORTEILE DER EINSÄTZE VOM TYP MAJA
Kamineinsatz wasserführend MAJA
MAJA 12/PW bilden eine neue Serie der wasserführenden Feuerstätten, die sich dank der angewandten technischen Lösungen durch Effizienz, Ökonomie, Ökologie (niedrige CO -und Feinstaubemission) und hohen Wirkungsgrad (ca. 80%) auszeichnen. Diese Arbeitsparameter sind durch folgende technische Lösungen geleistet:
und der Norm - Artikel 15a B-VG (Österreich)
Direkt vom Hersteller
Preis inkl. MwSt. und inkl. Versand
Bequeme Verwendung
Ein dekorativer Zaun erleichtert die Sauberkeit und schützt vor herausfallendem Holz.
Abnehmbarer Rost und Aschenbecher erleichtern das Sauberhalten des Einsatzes.
Hitzebeständiges Glas, das Temperaturen von bis zu 660 ° C standhält und dem Kamin ein modernes und elegantes Aussehen verleiht, vergrößert die Vorderseite des Einsatzes optisch.
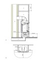
1. Anschlussplan der kamineinsatz mit wassermantel im offenen system.
2. Anschlussplan der kamineinsatz mit wassermantel mit dem gaskessel.
3. Geschlossenes System
Technische Daten:
Nennleistung (kW): 8,0
Durchschnittliche Leistung aus Wasser (kW): 6,0
Heizleistungsbereich (kW): 3,5 - 10,0
Wirkungsgrad der Heizung (%): 80,0
Maximaler Betriebsdruck (bar): 2,0
Art des Brennstoffs: empfohlenes abgelagertes Laubholz mit Feuchtigkeit ≤20%.
Maximale Länge der Stämme (cm): 33
CO-Emissionen (bei 13% O 2 ) ≤ Angaben in %: 0,1
Abgastemperatur (℃): 240,0
Art der Verglasung: flache Vorderseite
Fainstaubemission (mg/Nm3): 33,0
Einhaltung der BImSchV 2 (Deutschland): Ja
Einhaltung der Norm - Artikel 15a B-VG (Österreich): ja
Türöffnungssystem: links
Material: Stahl, Gusseisen
Außenmaße (B x H x T): 60,0 x 67.7 x 39
Sichercheitswärmetauscher: ja
Schutz vor Überhitzung durch das eingebaute Spiralrohr - Anschluss Eingang / Ausgang 1/2".
Ein Filter oder andere Umrüstungen sind daher nicht nötig.
Die Wahl der Gitter.
Eingangs- und Ausgangsgitter: Im unteren Teil der Bebauung der Kaminlufteinlage soll man die Ventilationsöffnungen vorsehen, mit Hilfe derer zur Bebauung des Gehäuses die nötige zur Heizung
Luft eingeht - Lufteingang ( untere Ventilationsgitter).
Um die entsprechende Entführung der heißen
Luft aus der Dachtraufe zu garantieren, sollen in ihr die wegblasende Öffnungen installiert werden,
die mit den Ventilationsgittern - Luftausgang (obere Ventilationsgitter) geendet werden.
Die Öffnungen werden mit Hilfe der Gitter vom Durchmesserfeld fertiggestellt, das abhängig von der Kraft der
Einlage von 40 bis 60 cm2 für1 kW der Kraft der Kamineinlage ist.
Kamineinsatz - MAJA PW 12 - Lüftungsgitter: Wir empfehlen
(Stahlluftgitter aller Art)
Zum Download
(DE) Kamineinsatze wasserführend - Bedienungsanleitung und Garantiekarte 24/02/2024.pdf
(DE) MAJA 8 PW - Leistungserklärung.pdf
Ersatzteilverzeichnis
Die Firma Kratki.pl Marek Ball garantiert Ihnen Lieferung der Ersatzteile während der Nutzung des Kamins. Zu diesem Zweck brauchen Sie nur mit unserer Verkaufsabteilung oder einer der nächsten Verkaufsstellen einen Kontakt aufzunehmen.

technische Daten
| Nennleistung | 11-15kW |